




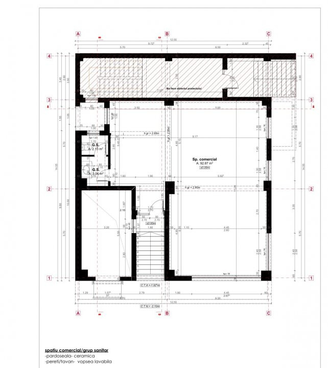
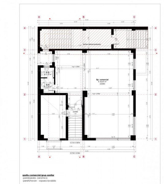
Dezrobirii - Institut - Spatiu comercial cu vitrina generoasa , vedere stradala , vizibil si reperabil usor , renovat in totalitate , centrala proprie , aer conditionat , posibilitate parcare .
Impreuna cu acesta , se mai poate achizitiona inca un spatiu in suprafata de 152 mp la pretul de 250.000 Euro ( nepurtator de TVA - proprietar persoana fizica )existand posibilitatea de a fi unite . ( R.942)
VIZIONAREA OFERTELOR SE FACE NUMAI IN BAZA ACORDULUI DE VIZIONARE !!